Description de votre projet de construction à Soullans
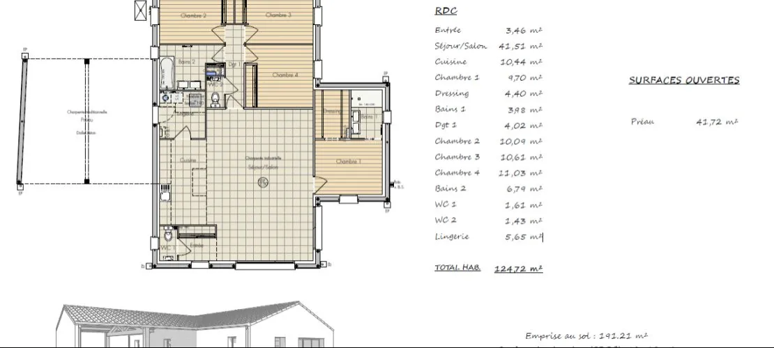
- 124 m²
- 7 pièces
- 4 chambres
- Hors lotissement
- 304 000 €
Prix avec assurance dommages-ouvrage comprise, hors VRD, terrain non viabilisé, frais de notaire non compris, frais divers non compris. Terrain sélectionné et vu pour vous sous réserve de disponibilité et au prix indiqué par notre partenaire foncier. Conditions et visuels non contractuels. - Soullans, 85300 · Vendee
Maison de 124,72m² comprenant, une entrée, un séjour/salon, une cuisine, une suite parentale (dressing + SDE), 3 chambres avec placards, une SDB, 2 WC, une lingerie et un préau double.
Contactez Guillaume CAPALDI au 06 72 53 69 14 ou au 02 51 93 32 33 (Maisons Comeca - Agence de Challans).
Quels sont les meilleurs critères quand il faut acheter son terrain ?
Pour vous guider au mieux et ne pas céder à la précipitation, l’équipe Coméca vous donne quelques éléments pour bien acheter votre terrain.
Surface du terrain, situation géographique, localisation, centre ville ou rase campagne, viabilisation… tous ces critères sont essentiels pour sélectionner votre futur terrain constructible. Vous pouvez d’ailleurs réfléchir à établir une checklist avec tous les critères dans l’ordre qui est le plus intéressant pour vous. Cela devrait simplifier votre recherche et votre choix.
Faire construire sa maison neuve près de Soullans
Vous êtes familiarisés avec Soullans et vous envisagez de vous installer sur cette commune ? nous vous invitons à consulter nos annonces de terrains constructibles à vendre à Soullans et ses environs. Parmi ces annonces, vous trouverez notamment un terrain de 270 m² qui peut vous donner un aperçu du marché ou vous aider à repérer votre futur emplacement idéal. Pour la construction de votre future maison individuelle à Soullans, vous pouvez avoir confiance en l'expertise de Coméca et bénéficier de nos compétences.
N’attendez plus pour nous parler de votre projet de maison à Soullans (85)
Ce projet de construction sucite votre curiosité ?
N’hésitez pas à nous appeler pour en savoir plus et prendre rendez-vous pour une visite sur place. Nos collaborateurs Coméca de seront ravis de vous accompagner dans votre projet de contruction de maison à Soullans et élaborer avec vous votre projet de construction dans son ensemble : la typologie de maison que vous désirez faire construire, vos modes de vie, vos désirs…
Demander une étude gratuite personnalisée
Remplissez ce formulaire pour obtenir plus d'informations sur cette annonce ou pour être recontacté par un de nos conseillers.
Ce terrain vous intéresse ?
Nos conseillers Coméca sont là pour vous accompagner dans l'achat de votre terrain à bâtir et discuter de votre projet de construction de A à Z.
Parlez-nous de votre projet !
Envoyer un messageAppelez-nous




